GIF89A

军械库展厅( 摄影:Giulio Squillacciotti | 来源:威尼斯双年展)
2021年6月9日,威尼斯双年展主席罗贝尔托·奇库托与第59届威尼斯国际艺术双年展总策展人塞西莉亚·阿莱玛尼(Cecilia Alemani)公布了2022年威尼斯国际艺术双年展主题为“梦想之乳”(The Milk of Dreams),展览将于2022年4月23日至11月27日在双年展固定场地绿园城堡(Giardini)和军械库(Arsenale),以及威尼斯市内的其他场地举办。

绿园城堡 中央展厅( 摄影:Andrea Avezzù | 来源:威尼斯双年展)
塞西莉亚·阿莱玛尼自2011年起一直担任纽约高线艺术的总监和首席策展人,并曾任2017年威尼斯双年展意大利国家馆策展人。她在阐释双年展主题时表示,面对技术与人类关系日益密切,人类与物体的边界彻底改变,人们的主观意识、对阶层结构和解剖结构的认识也随之发生深刻变化。作为凡人,我们既非所向无敌的物种,也无法完全独立于天地之间,我们只是相互依存的共生网络的组成部分,需要与他人、其他物种乃至整个地球和谐共处。

威尼斯双年展主席罗伯托·西库托和策展人塞西莉亚·阿莱马尼( 摄影:Andrea Avezzù | 来源:威尼斯双年展)
科技发展激发了艺术家们对人与世界关系的重新思考和认知。“梦想之乳”展览将努力探索人与世界共存和转变的模式,希望打造一场乐观向上的展览,为艺术及其创造另类宇宙论和新生存条件的能力喝彩。艺术家们将创作思路聚焦于时代问题,以此预测人类未来的变化,而非将精力放在人类的本质上。

中国馆立面图

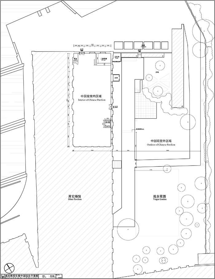
中国馆平面图

中国馆剖面图
威尼斯双年展中国馆办公室谨此向社会广泛征集第59届威尼斯国际艺术双年展中国馆策展方案,并就策展的规则通报如下:
一、确定中国馆的展览主题。主题要对本届双年展的总主题有所呼应,通过展示中国当代艺术并以中国当代艺术的实践为基础,拓展与国际当代艺术交流的空间,提高中国当代文化的国际影响力。策展方案需包含以下几项内容:
(一)策展思路及总主题之间的关联性阐述,通过当代艺术的表达方式阐释对中国传统文化的理解,讲好中国故事;
(二)总体方案,包括对艺术家作品的基本构想。展陈效果遵循内容和形式、整体性和创新性相统一,鼓励通过艺术与科技融合手段进行展览呈现;
(三)技术、施工方案、安装材料及方式,运输等详细参数;
(四)费用,包括经费整体预算、寻求资金支持的可行性等;
(五)宣传计划,包括境内外宣传布局和时间节点规划;
(六)预期目标,包括学术价值和境内外影响力等;
(七)工作日程表,包括各阶段重点事项等。
二、策展方案需展现中国当代艺术特色和发展趋势,其理念应具有统一性与整体性;参展作品需兼具积极向上和创新的精神,力求内容、类型与策展理念的一致性和融合性。
三、充分考虑中国国家馆的场地条件,确保展览能够因地制宜地实施。
中国馆地址:Arsenale - Magazzino delle Cisterne, Castello 2169 /F - 30122 Venezia, Italy。
四、策展人需具有当代艺术方面的策展经验,良好的沟通、协调和寻求中国馆运作资金的能力;对中国当代艺术现状有充分的了解,从而能够提出有独创性的策展思路。
五、费用原则
(一)威尼斯双年展中国馆组委会将负担中国馆的场地租金、展览期间场地看护的人工费、国内新闻发布会及威尼斯双年展期刊信息等宣传费,中国馆开幕式招待会费用,并适当补贴展品的往返国际运费;
(二)中国馆策展方负担策展所需的费用、展品的筹集(含展品、展陈的制作、搭建)、展品境内及往返国际运输不足部分的费用,参展人员的往返国际旅费及在当地的食宿交通费,布、撤展以及展览期间观众意外伤害险等费用。
六、策展方案及简历提交的截止日期为2021年11月5日,提交方式可通过电子邮件或邮寄。
七、专家委员会将对所有策展方案进行评选。一旦方案被选定,我们将及时通知策展人。我们将对提交的策展方案严格保密;未被选定的方案恕不退回。
八、所选定的中国策展方需与中国馆组织方签订“落实中国馆展览的协议”,以约定双方的权利与义务,确保展览顺利圆满的举办。
联系方式:010-59881962
联 系 人:张彦雯
电子邮箱:europe@mct.gov.cn
邮寄地址:北京市东城区朝阳门北大街10号(1305室)
威尼斯双年展中国馆办公室
邮编:100020
电话:010-59881962
传真:010-59881958
威尼斯双年展官方网站:www.labiennale.org